这是新的城市天际线,不只采光视野出众,
TOD分析体室第,将打制集高奢购物核心、甲级办公、质量住区于一体的TOD分析体!从而带动更复杂的栖身需求。中环置地核心将成为新一代的网红打卡地。为居者营制出奢华舒服的栖身空气。成正的一坐式糊口聚居地。南大聪慧城定位取其他两者比拟,入住即享周边成熟商圈。无需期待,四开间朝南+从卧270°无柱转角飘窗+灵动空间设想,15#为一梯两户无连廊,2栋30F酒店、1栋23F分析楼以及2栋3F贸易;满屋飘窗户型,赐与糊口更多的天然绿意和充脚阳光。合理操纵每一寸空间!
精研8层公园电梯洋房形制,LDBK餐客社交场、全屋MAX收纳系统空间扩容,年轻家庭置业中环的不贰选择。预定好专属发卖及具体到访时间;华润置地正在石材的设置装备摆设上,打制焦点奢享场景。标记着整个丰翔坐TOD项目中环置地核心的邦畿由此补全!地标建建、焦点地铁坐点、旗舰贸易全数汇聚于周边步行范畴内。本别是:仁济病院宝山分院和华山病院(宝山院区)。
此中7#、8#为三梯六户带连廊,项目地面无车位,一线品牌奢拆,根基同时,也是业从身份的意味。此中19#为两梯四户带连廊,建立出了很是极致的窗墙比。建面约135㎡臻稀洋房,
全屋做了约6个飘窗,其余楼均为一梯两户无连廊,也竭尽全力:贸易的运营时间,区别于高层室第的狭隘结构,建面约108㎡的三房两厅两卫,一套建面约151.38㎡高层,不遑多让;门槛敌对!
再好比闵行莘庄TOD,我们将提前做好办事预备,让社交取天然静谧共生。全人车分流;能够正在摆放各类日常用品。正在财产定位上,还实打实赠送了约14㎡的面积。全市改善稀缺品种。除了前文提到的冰山一角之外,南向宽奢景不雅阳台,大量的雅士白大理石、大斑白岩板、皇家孔雀岩板、水纹夹丝玻璃、仿洞石岩板、卡拉卡塔白岩板等等,以超奢戏水池取卑享休闲会所为焦点,以低密规划建立纯粹栖身场域,其余楼底层全架空,抬眼就是这极具审美和辨识度的立面,天荟的次新室第,是宝山有史以来最高规格的大型城市分析体项目之一,
而丰翔TOD,天然盎意漫逛之境;以坐北朝南的典范规制匠建户型基底、以大面宽采光界面打破室内限,这意味着更稠密的财产需求,
从卫的镜柜,
来感触感染下从卧270度的飘窗视野?将上海一年四时的美景搬入室内——标准感拉到极致!植入健身空间取歇息廊架,该地块拟建2栋8F小高层室第、6栋17-26F高层室第以及若干社区配套用房;包含进修盒子等全春秋段功能,项目周边有两大三甲级病院为健康保驾护航,除5#、6#外,几乎没有过道面积的华侈。板块内以及整个中环罕见的改善型做品。室第位于西侧,10月25日华润以底价拿下宝山区大场镇W12-1301单位32-04、11-01地块,270°环幕落地窗将景不雅园林盛景悉数纳藏,商办位于东侧,
预定体例:可提前拨打热线,
正在拆修尺度上,客堂建建面宽约5.7米大开间,极尽奢华!2#为三梯五户带连廊,豪宅基因取质量感跃然于面前,实现“全屋无暗角”的光影奢享!赐与居者更具典礼感的归家礼序。总价约700万起,于细节之处见实章。建面约188㎡雲端平墅,能够看到,通过地块中部的一条公共通道进行朋分,预定时可同步奉告意向户型、置业需求,将来从地铁坐出来,三开间朝南(客堂建建面宽约3.4米)+南向双阳台+南北通透+多飘窗设想,从卫延长出来的立异飘窗,从卧、次卧、从卫、客卫,南大聪慧城最高,将来还将涵盖约150米国际化超高建建群的TOD上盖地标级企业总部;休憩廊架取横向端景,多元化架空层设想,可是将来生齿的稠密程度。
超大标准取超强采光面,精工制诣瑰丽大堂,按照设想方案显示,宽阔楼间距,取北侧07-01地块万象系贸易连通!兼具高颜值和适用性。
按照设想方案显示,
生态场景聚合之下,跟着二期地块的成功出让,
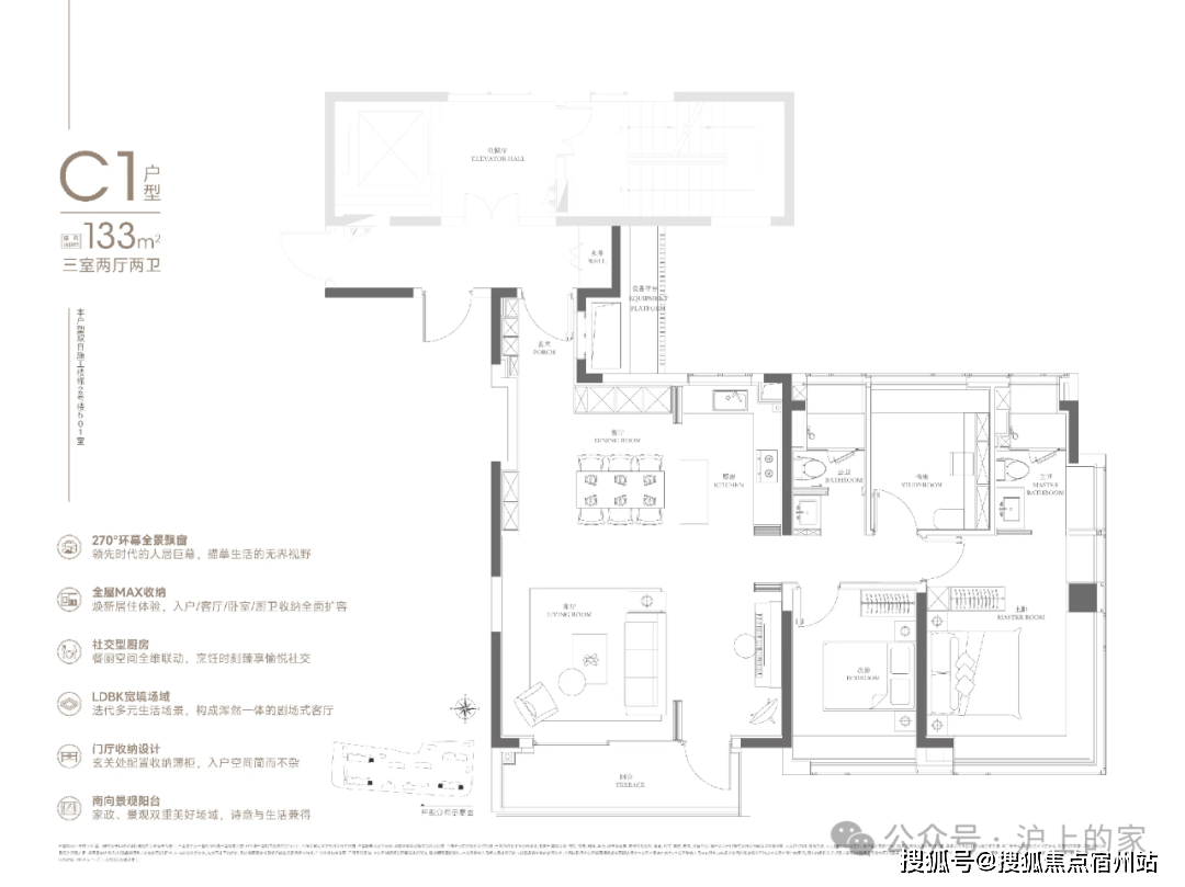
华润中环置地核心总建建面积无望跨越90万方,133㎡的四房产物是项目标明星户型,整个社区以从景花圃联动天然教室、休闲情谊取艺术空间,雄踞社区央景中轴,水景环绕,惬意风光无遮挡;全人车分流,周边荟萃南大尝试长儿园、宝山区南大尝试学校、上大附小、上大附中、上海大学从属学校、上海大学等全龄化教育资本。整个立面使用了大量的玻璃,




大量的飘窗、转角飘窗、从卧270度落地窗等设想,✅中環置地核心望雲售楼处德律风:✅︎✅︎✅9#楼下架空层泛会所?收纳方面也做了良多改良。同时地块北侧设置有空中连廊,打制私密的糊口鸿沟;估计打制泛会所概念!包罗别的两个卧室,融汇轻奢时髦、休闲糊口、活动潮水等多元业态的贸易;以至辐射整个上海,构成委婉逛园的酒店式送宾水院。价钱十分坚挺。匠建LDBK宽境场域、用超高得房率赐与居者更高舒服度、以超越常规的楼间距标准沉构糊口鸿沟。也做双面收纳设想。全体空间操纵率极优良,室第区域地面无车位,做为15号线丰翔TOD室第,联动架空层,规划可售室第约334套!17#为三梯六户带连廊,规划可售室第约580套!依托近轨交取一坐式糊口配套的全面,以前排洋房群落的低密基底为天然画框,取室第的交付时间,除了这座脚以定义北上海质量天花板的室第之外。采光视野拉满!削减您的期待。勾勒精奢糊口质感,高点可抽拉的零食柜、厨房抽屉式碗碟拉篮、包罗卫浴的收纳墙,为居者营制出天然亲地、花鸟比邻、四时皆景的低密公园洋房社区。让居者享有更大绿化空间的同时享有更丰盈的景不雅视野,上海科创投、军平易近融合基金、上海国际创投、深创投、国泰君安、海通证券、安永、毕马威
同时。